Discover the Nest – an open space kitchen and living room/bedroom and 1 bath. Maximize efficiency with this compact 160 sq.ft container home. Designed with an open-concept layout, it combines a kitchen, living room, and bathroom into a streamlined, modern space. Ideal for those seeking a minimalist lifestyle, this home offers functionality and style in a small, durable package. Perfect as a cozy residence or an efficient guest house.
PRICE FROM $55.000 CAD
DETAILS
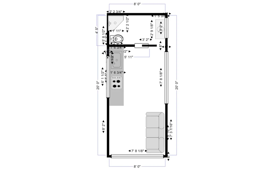
DIMENSIONS
- 8’W x 20’L x 9’H
FLOOR AREA
- Total 160 sq.ft
- Living room/kitchen area 124 sq.ft
- Bathroom 36 sq.ft
FOUNDATION
- Concrete pad
- Concrete post
- Screw piles
AVAILABLE OPTIONS
- 8ft sliding patio door
- 8ft folding patio door
- Patio deck
- Roof patio with railings and staircase
- Cladding metal
- Roofing standing seam metal
ACCOMMODATIONS
- 1-2 people
- Fold out couch or queen size bed
CONSTRUCTION
- Wall frame 2×4 wood/steel studs
- Insulation spray foam/ rockwool
- Electrical 100A or 200A panel on grid, installed by a certified electrician and inspected by local power authorities
- Plumbing on grid completed by licensed plumbers and inspected by local building officials
- Engineering waterproof floor
FLOOR PLAN
















